ដែកអ៊ីណុក H l Beam
ការពិពណ៌នាសង្ខេប៖
“H Beam” សំដៅលើធាតុផ្សំនៃរចនាសម្ព័ន្ធដែលមានរាងដូចអក្សរ “H” ដែលត្រូវបានគេប្រើជាទូទៅក្នុងការសាងសង់ និងកម្មវិធីរចនាសម្ព័ន្ធផ្សេងៗ។
ដែកអ៊ីណុក H Beam៖
ដែកអ៊ីណុក H Beam គឺជាធាតុផ្សំនៃរចនាសម្ព័ន្ធដែលត្រូវបានកំណត់ដោយផ្នែកឆ្លងកាត់រាងអក្សរ H ។បណ្តាញទាំងនេះត្រូវបានផលិតឡើងពីដែកអ៊ីណុក ដែលជាលោហៈធាតុដែលធន់នឹងការច្រេះ ដែលត្រូវបានគេស្គាល់ថាសម្រាប់ភាពធន់ អនាម័យ និងការទាក់ទាញផ្នែកសោភ័ណភាព។ឆានែល H ដែកអ៊ីណុកស្វែងរកកម្មវិធីនៅក្នុងឧស្សាហកម្មផ្សេងៗ រួមទាំងសំណង់ ស្ថាបត្យកម្ម និងការផលិត ដែលភាពធន់នឹងការ corrosion និងកម្លាំងរបស់ពួកគេធ្វើឱ្យពួកគេក្លាយជាជម្រើសដែលពេញចិត្តសម្រាប់ការគាំទ្ររចនាសម្ព័ន្ធ និងការរចនា។ សមាសធាតុទាំងនេះជារឿយៗត្រូវបានប្រើក្នុងការសាងសង់ក្របខ័ណ្ឌ ការគាំទ្រ និងផ្សេងៗទៀត។ ធាតុរចនាសម្ព័ន្ធដែលទាំងកម្លាំង និងរូបរាងប៉ូលាគឺចាំបាច់។
លក្ខណៈបច្ចេកទេសរបស់ I Beam៖
| ថ្នាក់ | 302 304 304L3105 316 316L 321 2205 2507 ល។ |
| ស្តង់ដារ | GB T33814-2017, GBT11263-2017 |
| ផ្ទៃ | ការបាញ់គ្រាប់បែកខ្សាច់ ប៉ូលាបាញ់ |
| បច្ចេកវិទ្យា | រមៀលក្តៅ, ផ្សារដែក |
| ប្រវែង | ពី ១ ទៅ ១២ ម៉ែត្រ |
គេហទំព័រ៖
បណ្តាញបម្រើជាស្នូលកណ្តាលនៃធ្នឹម ដែលជាធម្មតាត្រូវបានចាត់ថ្នាក់ដោយផ្អែកលើកម្រាស់របស់វា។ដំណើរការជាតំណភ្ជាប់រចនាសម្ព័ន្ធ វាដើរតួនាទីយ៉ាងសំខាន់ក្នុងការថែរក្សាភាពសុចរិតរបស់ធ្នឹមដោយភ្ជាប់ និងបង្រួបបង្រួមគែមទាំងពីរ ចែកចាយ និងគ្រប់គ្រងសម្ពាធប្រកបដោយប្រសិទ្ធភាព។
គែម៖
ផ្នែកខាងលើ និងផ្នែកខាងក្រោមនៃដែកមានបន្ទុកចម្បង។ដើម្បីធានាបាននូវការចែកចាយសម្ពាធស្មើៗគ្នា យើងធ្វើឱ្យគែមរាបស្មើ។សមាសធាតុទាំងពីរនេះដំណើរការស្របគ្នាទៅវិញទៅមក ហើយនៅក្នុងបរិបទនៃ I-beams ពួកវាមានផ្នែកបន្ថែមដូចស្លាប។
ការវាស់វែងកម្រាស់បន្ទាត់ welded:
លក្ខណៈពិសេស និងអត្ថប្រយោជន៍៖
•ការរចនាផ្នែកឈើឆ្កាងរាង "H" នៃដែក I-beam ផ្តល់នូវសមត្ថភាពផ្ទុកខ្ពស់សម្រាប់បន្ទុកបញ្ឈរ និងផ្ដេក។
•ការរចនារចនាសម្ព័ន្ធនៃដែក I-beam ផ្តល់នូវស្ថេរភាពខ្ពស់ ការពារការខូចទ្រង់ទ្រាយ ឬពត់ក្រោមភាពតានតឹង។
•ដោយសារតែរូបរាងតែមួយគត់របស់វា ដែក I-beam អាចបត់បែនបានទៅនឹងរចនាសម្ព័ន្ធផ្សេងៗ រួមទាំងធ្នឹម សសរ ស្ពាន និងច្រើនទៀត។
•ដែកថែប I-beam ដំណើរការបានល្អពិសេសក្នុងការពត់កោង និងការបង្ហាប់ ដែលធានាបាននូវស្ថេរភាពនៅក្រោមលក្ខខណ្ឌផ្ទុកដ៏ស្មុគស្មាញ។
•ជាមួយនឹងការរចនាប្រកបដោយប្រសិទ្ធភាព និងភាពរឹងមាំល្អរបស់វា ដែកថែប I-beam តែងតែផ្តល់នូវប្រសិទ្ធភាពចំណាយដ៏ល្អ។
•ដែកថែប I-beam រកឃើញការប្រើប្រាស់យ៉ាងទូលំទូលាយក្នុងការសាងសង់ ស្ពាន បរិក្ខារឧស្សាហ៍កម្ម និងវិស័យផ្សេងៗ ដោយបង្ហាញពីភាពបត់បែនរបស់វាតាមគម្រោងវិស្វកម្ម និងរចនាសម្ព័ន្ធផ្សេងៗគ្នា។
•ការរចនានៃដែកថែប I-beam អនុញ្ញាតឱ្យវាសម្របខ្លួនបានប្រសើរជាងមុនទៅនឹងតម្រូវការនៃការសាងសង់ និងការរចនាប្រកបដោយនិរន្តរភាព ដោយផ្តល់នូវដំណោះស្រាយរចនាសម្ព័ន្ធដែលអាចសម្រេចបានសម្រាប់ការអនុវត្តអគារបៃតង និងបរិស្ថាន។
សមាសធាតុគីមី H Beam៖
| ថ្នាក់ | C | Mn | P | S | Si | Cr | Ni | Mo | អាសូត |
| ៣០២ | 0.15 | 2.0 | ០.០៤៥ | 0.030 | 1.0 | ១៧.០-១៩.០ | 8.0-10.0 | - | ០.១០ |
| ៣០៤ | 0.08 | 2.0 | ០.០៤៥ | 0.030 | 1.0 | 18.0-20.0 | 8.0-11.0 | - | - |
| ៣០៩ | ០.២០ | 2.0 | ០.០៤៥ | 0.030 | 1.0 | ២២.០-២៤.០ | 12.0-15.0 | - | - |
| ៣១០ | 0.25 | 2.0 | ០.០៤៥ | 0.030 | ១.៥ | 24-26.0 | 19.0-22.0 | - | - |
| ៣១៤ | 0.25 | 2.0 | ០.០៤៥ | 0.030 | 1.5-3.0 | 23.0-26.0 | 19.0-22.0 | - | - |
| ៣១៦ | 0.08 | 2.0 | ០.០៤៥ | 0.030 | 1.0 | 16.0-18.0 | 10.0-14.0 | 2.0-3.0 | - |
| ៣២១ | 0.08 | 2.0 | ០.០៤៥ | 0.030 | 1.0 | ១៧.០-១៩.០ | 9.0-12.0 | - | - |
លក្ខណៈសម្បត្តិមេកានិចនៃ I Beams:
| ថ្នាក់ | កម្លាំង tensile ksi [MPa] | Yiled Strengtu ksi [MPa] | ការពន្លូត % |
| ៣០២ | 75[515] | ៣០[២០៥] | ៤០ |
| ៣០៤ | ៩៥[៦៦៥] | 45[310] | 28 |
| ៣០៩ | 75[515] | ៣០[២០៥] | 40 |
| ៣១០ | 75[515] | ៣០[២០៥] | 40 |
| ៣១៤ | 75[515] | ៣០[២០៥] | 40 |
| ៣១៦ | ៩៥[៦៦៥] | 45[310] | 28 |
| ៣២១ | 75[515] | ៣០[២០៥] | 40 |
ហេតុអ្វីជ្រើសរើសយើង?
•អ្នកអាចទទួលបានសម្ភារៈល្អឥតខ្ចោះតាមតម្រូវការរបស់អ្នកក្នុងតម្លៃទាបបំផុត។
•យើងក៏ផ្តល់ជូននូវតម្លៃ Reworks, FOB, CFR, CIF និងតម្លៃដឹកជញ្ជូនតាមផ្ទះផងដែរ។យើងស្នើឱ្យអ្នកធ្វើកិច្ចព្រមព្រៀងសម្រាប់ការដឹកជញ្ជូនដែលនឹងសន្សំសំចៃណាស់។
•សមា្ភារៈដែលយើងផ្តល់ជូនគឺអាចផ្ទៀងផ្ទាត់បានទាំងស្រុង ចាប់ពីវិញ្ញាបនបត្រសាកល្បងវត្ថុធាតុដើមរហូតដល់សេចក្តីថ្លែងការណ៍វិមាត្រចុងក្រោយ។(របាយការណ៍នឹងបង្ហាញតាមតម្រូវការ)
•យើងធានាថានឹងផ្តល់ការឆ្លើយតបក្នុងរយៈពេល 24 ម៉ោង (ជាធម្មតាក្នុងមួយម៉ោងដូចគ្នា)
•ផ្តល់របាយការណ៍ SGS TUV ។
•យើងត្រូវបានឧទ្ទិសយ៉ាងពេញលេញដល់អតិថិជនរបស់យើង។ប្រសិនបើវាមិនអាចធ្វើទៅបានដើម្បីបំពេញតាមតម្រូវការរបស់អ្នកបន្ទាប់ពីពិនិត្យមើលជម្រើសទាំងអស់នោះ យើងនឹងមិនធ្វើឱ្យអ្នកយល់ច្រឡំដោយការសន្យាមិនពិតដែលនឹងបង្កើតទំនាក់ទំនងល្អជាមួយអតិថិជន។
•ផ្តល់សេវាកម្មតែម្តង។
ការធ្វើតេស្តជ្រៀតចូល (PT)
ផ្អែកលើ JBT 6062-2007 ការធ្វើតេស្តមិនបំផ្លិចបំផ្លាញ - ការធ្វើតេស្ត penetrant នៃ welds សម្រាប់ដែកអ៊ីណុក 304 316 welded H Beam ។
តើវិធីសាស្រ្តផ្សារដែកមានអ្វីខ្លះ?
វិធីសាស្រ្តនៃការផ្សាររួមមានការផ្សារធ្នូ ការផ្សារដែកការពារឧស្ម័ន (MIG/MAG welding) ការផ្សារធន់ទ្រាំ ការផ្សារឡាស៊ែរ ការផ្សារធ្នូប្លាស្មា ការកកិត ការផ្សារដែក ការផ្សារសម្ពាធ ការផ្សារធ្នឹមអេឡិចត្រុង។ល។ ប្រភេទនៃ workpieces និងតម្រូវការផលិតកម្ម។ ធ្នូត្រូវបានប្រើដើម្បីបង្កើតសីតុណ្ហភាពខ្ពស់ រលាយលោហៈនៅលើផ្ទៃនៃ workpiece ដើម្បីបង្កើតការតភ្ជាប់។វិធីសាស្រ្តផ្សារធ្នូទូទៅរួមមានការផ្សារធ្នូដោយដៃ ការផ្សារធ្នូ argon ការផ្សារធ្នូលិចទឹក ។ល។ កំដៅដែលបង្កើតដោយភាពធន់នឹងត្រូវបានប្រើដើម្បីរលាយលោហៈនៅលើផ្ទៃនៃ workpiece ដើម្បីបង្កើតការតភ្ជាប់។ការផ្សារធន់នឹងរួមបញ្ចូលទាំងការផ្សារកន្លែង ការផ្សារថ្នេរ និងការផ្សារដែក។
តើអ្វីទៅជាគុណសម្បត្តិនៃការផ្សារធ្នូលិចទឹក?
ការផ្សារធ្នូលិចទឹកគឺសមរម្យសម្រាប់ស្វ័យប្រវត្តិកម្មនិងបរិយាកាសដែលមានបរិមាណខ្ពស់។វាអាចបញ្ចប់ការងារផ្សារក្នុងបរិមាណដ៏ច្រើនក្នុងរយៈពេលដ៏ខ្លី និងបង្កើនប្រសិទ្ធភាពផលិតកម្ម។ការផ្សារធ្នូលិចទឹកគឺសមរម្យសម្រាប់ស្វ័យប្រវត្តិកម្មនិងបរិយាកាសដែលមានបរិមាណខ្ពស់។វាអាចបញ្ចប់ការងារផ្សារក្នុងបរិមាណដ៏ច្រើនក្នុងរយៈពេលដ៏ខ្លី និងបង្កើនប្រសិទ្ធភាពផលិតកម្ម។ការផ្សារធ្នូក្រោមទឹក ជាទូទៅត្រូវបានប្រើដើម្បីភ្ជាប់សន្លឹកដែកក្រាស់ជាងមុន ដោយសារតែចរន្តខ្ពស់ និងការជ្រៀតចូលខ្ពស់របស់វាធ្វើឱ្យវាកាន់តែមានប្រសិទ្ធភាពក្នុងកម្មវិធីទាំងនេះ។ដោយសារផ្សារដែកត្រូវបានគ្របដណ្ដប់ដោយលំហូរ អុកស៊ីហ្សែនអាចត្រូវបានការពារយ៉ាងមានប្រសិទ្ធភាពពីការចូលទៅក្នុងតំបន់ផ្សារ ដោយកាត់បន្ថយលទ្ធភាពនៃការកត់សុី និងការប្រេះស្រាំ។ បើប្រៀបធៀបទៅនឹងវិធីសាស្រ្តផ្សារដោយដៃមួយចំនួន ការផ្សារធ្នូដែលលិចទឹកជាញឹកញាប់អាចដំណើរការដោយស្វ័យប្រវត្តិបានកាន់តែងាយស្រួល ដោយកាត់បន្ថយតម្រូវការខ្ពស់នៅលើ ជំនាញកម្មករ។នៅក្នុងការផ្សារធ្នូដែលលិចទឹក ខ្សែផ្សារ និងធ្នូជាច្រើនអាចត្រូវបានប្រើក្នុងពេលដំណាលគ្នាដើម្បីសម្រេចបាននូវការផ្សារពហុឆានែល (ពហុស្រទាប់) និងបង្កើនប្រសិទ្ធភាព។
តើការប្រើប្រាស់ធ្នឹម H ដែកអ៊ីណុកមានអ្វីខ្លះ?
ធ្នឹម H ដែកអ៊ីណុកត្រូវបានប្រើប្រាស់យ៉ាងទូលំទូលាយក្នុងការសាងសង់ វិស្វកម្មសមុទ្រ ឧបករណ៍ឧស្សាហកម្ម រថយន្ត គម្រោងថាមពល និងវិស័យផ្សេងៗទៀត ដោយសារភាពធន់នឹងច្រេះ និងភាពធន់របស់វា។ពួកគេផ្តល់ការគាំទ្រផ្នែករចនាសម្ព័ន្ធនៅក្នុងគម្រោងសាងសង់ និងដើរតួនាទីយ៉ាងសំខាន់នៅក្នុងបរិស្ថានដែលទាមទារភាពធន់នឹងការ corrosion ដូចជាការកំណត់សមុទ្រ ឬឧស្សាហកម្ម។លើសពីនេះទៀត រូបរាងទំនើប និងសោភ័ណភាពរបស់ពួកគេ ធ្វើឱ្យពួកគេស័ក្តិសមសម្រាប់កម្មវិធីស្ថាបត្យកម្ម និងផ្នែកខាងក្នុង។
តើធ្នឹម HI ដែកអ៊ីណុកត្រង់ត្រង់ណា?
ភាពត្រង់នៃដែកអ៊ីណុក H-beam ដូចជាសមាសធាតុរចនាសម្ព័ន្ធណាមួយ គឺជាកត្តាសំខាន់ក្នុងដំណើរការ និងការដំឡើងរបស់វា។ជាទូទៅ ក្រុមហ៊ុនផលិតផលិតដែកអ៊ីណុក H-beam ជាមួយនឹងកម្រិតជាក់លាក់នៃភាពត្រង់ដើម្បីបំពេញតាមស្តង់ដារ និងលក្ខណៈបច្ចេកទេសឧស្សាហកម្ម។
ស្តង់ដារឧស្សាហកម្មដែលទទួលយកបានសម្រាប់ភាពត្រង់នៅក្នុងរចនាសម្ព័ន្ធដែក រួមទាំងដែកអ៊ីណុក H-beams ត្រូវបានកំណត់ជាញឹកញាប់នៅក្នុងលក្ខខណ្ឌនៃគម្លាតដែលអាចអនុញ្ញាតបានពីបន្ទាត់ត្រង់លើប្រវែងជាក់លាក់មួយ។គម្លាតនេះត្រូវបានបង្ហាញជាធម្មតានៅក្នុងលក្ខខណ្ឌនៃមីលីម៉ែត្រ ឬអុិនឈ៍នៃការបោសសំអាត ឬការផ្លាស់ទីលំនៅនៅពេលក្រោយ។
ការណែនាំអំពីរូបរាងរបស់ H beam ?
ទម្រង់កាត់នៃដែក I-beam ដែលត្រូវបានគេស្គាល់ជាទូទៅថា "工字钢" (gōngzìgāng) ជាភាសាចិន ស្រដៀងនឹងអក្សរ "H" នៅពេលបើក។ជាពិសេស ផ្នែកឆ្លងកាត់ជាធម្មតាមានរបារផ្តេកពីរ (គែម) នៅផ្នែកខាងលើ និងខាងក្រោម និងរបារកណ្តាលបញ្ឈរ (បណ្តាញ)។រូបរាង "H" នេះផ្តល់នូវភាពរឹងមាំ និងស្ថេរភាពដ៏ប្រសើរដល់ដែក I-beam ដែលធ្វើឱ្យវាក្លាយជាសម្ភារៈរចនាសម្ព័ន្ធទូទៅក្នុងការសាងសង់ និងវិស្វកម្ម។ រូបរាងដែលបានរចនាឡើងនៃដែក I-beam អនុញ្ញាតឱ្យវាស័ក្តិសមសម្រាប់កម្មវិធីផ្ទុក និងទ្រទ្រង់ផ្សេងៗ ដូចជា ជាធ្នឹម សសរ និងរចនាសម្ព័ន្ធស្ពាន។ការកំណត់រចនាសម្ព័ន្ធនេះអនុញ្ញាតឱ្យដែកថែប I-beam ចែកចាយបន្ទុកយ៉ាងមានប្រសិទ្ធភាពនៅពេលដែលទទួលរងនូវកម្លាំង ដោយផ្តល់នូវការគាំទ្រដ៏រឹងមាំ។ដោយសារតែរូបរាងពិសេស និងលក្ខណៈរចនាសម្ព័ន្ធរបស់វា ដែកថែប I-beam បានរកឃើញការប្រើប្រាស់យ៉ាងទូលំទូលាយនៅក្នុងវិស័យសំណង់ និងវិស្វកម្ម។
តើធ្វើដូចម្តេចដើម្បីបង្ហាញពីទំហំនិងការបញ្ចេញមតិរបស់ I-beam?
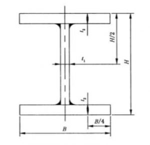
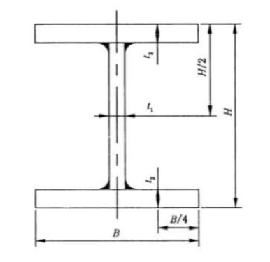
Ⅰ. រូបគំនូរកាត់ផ្នែក និងសញ្ញាសម្គាល់នៃដែកអ៊ីណុក 316L ដែលផ្សារដែករាងអក្សរ H៖
H— កម្ពស់
B— ទទឹង
t1- កម្រាស់គេហទំព័រ
t2—— កម្រាស់បន្ទះ
h£—— ទំហំផ្សារដែក (នៅពេលប្រើការរួមបញ្ចូលគ្នានៃគូទ និងសរសៃ វាគួរតែជាទំហំជើងផ្សារដែកដែលបានពង្រឹង hk)
Ⅱវិមាត្រ រូបរាង និងគម្លាតដែលអាចអនុញ្ញាតបាននៃដែកថែប 2205 ដែកសន្លឹក welded រាង H:
| H Beam | ការអត់ឱន |
| ភាពធន់ (H) | Helght 300 ឬតិចជាង: 2.0 mm ច្រើនជាង 300:3.0mm |
| ទទឹង (B) | 2.0mm |
| កាត់កែង (T) | 1.2% ឬតិចជាងនៃ wldth (B) ចំណាំថា minlmum toleranceis 2.0 mm |
| អុហ្វសិតនៃមជ្ឈមណ្ឌល (C) | 2.0mm |
| ពត់កោង | ប្រវែង 0.2096 ឬតិចជាងនេះ។ |
| ប្រវែងជើង (S) | [web plate thlckness (t1) x0.7] ឬច្រើនជាងនេះ។ |
| ប្រវែង | ៣-១២ ម។ |
| ភាពអត់ធ្មត់ | +40mm, មួយ 0mm |
Ⅳវិមាត្រកាត់ផ្នែក ផ្ទៃកាត់ ទំងន់ទ្រឹស្តី និងប៉ារ៉ាម៉ែត្រលក្ខណៈផ្នែកឆ្លងកាត់នៃដែករាងអក្សរ H welded
| ធ្នឹមដែកអ៊ីណុក | ទំហំ | តំបន់ផ្នែក (cm²) | ទម្ងន់ (គីឡូក្រាម / ម) | ប៉ារ៉ាម៉ែត្រលក្ខណៈ | ទំហំផ្សារដែក h(mm) | ||||||||
| H | B | t1 | t2 | xx | យី | ||||||||
| mm | I | W | i | I | W | i | |||||||
| WH100X50 | ១០០ | 50 | ៣.២ | ៤.៥ | ៧.៤១ | ៥.២ | ១២៣ | 25 | ៤.០៧ | 9 | 4 | ១.១៣ | 3 |
| ១០០ | 50 | 4 | 5 | ៨.៦០ | ៦.៧៥ | ១៣៧ | 27 | ៣.៩៩ | 10 | 4 | ១.១០ | 4 | |
| WH100X100 | ១០០ | ១០០ | 4 | 6 | ១៥.៥២ | 12.18 | ២៨៨ | 58 | ៤.៣១ | ១០០ | 20 | ២.៥៤ | 4 |
| ១០០ | ១០០ | 6 | 8 | ២១.០៤ | ១៦.៥២ | ៣៦៩ | 74 | ៤.១៩ | ១៣៣ | 27 | ២.៥២ | 5 | |
| WH100X75 | ១០០ | 75 | 4 | 6 | ១២.៥២ | ៩.៨៣ | ២២២ | 44 | ៤.២១ | 42 | 11 | ១.៨៤ | 4 |
| WH125X75 | ១២៥ | 75 | 4 | 6 | ១៣.៥២ | ១០.៦១ | ៣៦៧ | 59 | ៥.២១ | 42 | 11 | ១.៧៧ | 4 |
| WH125X125 | ១២៥ | 75 | 4 | 6 | ១៩.៥២ | ១៥.៣២ | ៥៨០ | 93 | ៥.៤៥ | ១៩៥ | 31 | ៣.១៦ | 4 |
| WH150X75 | ១៥០ | ១២៥ | ៣.២ | ៤.៥ | ១១.២៦ | ៨.៨៤ | ៤៣២ | 58 | ៦.១៩ | 32 | 8 | ១.៦៨ | 3 |
| ១៥០ | 75 | 4 | 6 | ១៤.៥២ | ១១.៤ | ៥៥៤ | 74 | ៦.១៨ | 42 | 11 | ១.៧១ | 4 | |
| ១៥០ | 75 | 5 | 8 | 18.70 | ១៤.៦៨ | ៧០៦ | 94 | ៦.១៤ | 56 | 15 | ១.៧៤ | 5 | |
| WH150X100 | ១៥០ | ១០០ | ៣.២ | ៤.៥ | ១៣.៥១ | ១០.៦១ | ៥៥១ | 73 | ៦.៣៩ | 75 | 15 | ២.៣៦ | 3 |
| ១៥០ | ១០០ | 4 | 6 | ១៧.៥២ | ១៣.៧៥ | ៧១០ | 95 | ៦.៣៧ | ១០០ | 20 | ២.៣៩ | 4 | |
| ១៥០ | ១០០ | 5 | 8 | ២២.៧០ | ១៧,៨២ | ៩០៨ | ១២១ | ៦.៣២ | ១៣៣ | 27 | ២.៤២ | 5 | |
| WH150X150 | ១៥០ | ១៥០ | 4 | 6 | ២៣.៥២ | ១៨.៤៦ | ១០២១ | ១៣៦ | ៦,៥៩ | ៣៣៨ | 45 | ៣.៧៩ | 4 |
| ១៥០ | ១៥០ | 5 | 8 | ៣០.៧០ | ២៤.១០ | ១ ៣១១ | ១៧៥ | ៦.៥៤ | ៤៥០ | 60 | ៣.៨៣ | 5 | |
| ១៥០ | ១៥០ | 6 | 8 | ៣២.០៤ | ២៥,១៥ | ១ ៣៣១ | ១៧៨ | ៦.៤៥ | ៤៥០ | 60 | ៣.៧៥ | 5 | |
| WH200X100 | ២០០ | ១០០ | ៣.២ | ៤.៥ | ១៥.១១ | ១១.៨៦ | ១០៤៦ | ១០៥ | ៨.៣២ | 75 | 15 | ២.២៣ | 3 |
| ២០០ | ១០០ | 4 | 6 | ១៩.៥២ | ១៥.៣២ | ១៣៥១ | ១៣៥ | ៨.៣២ | ១០០ | 20 | ២.២៦ | 4 | |
| ២០០ | ១០០ | 5 | 8 | ២៥.២០ | ១៩.៧៨ | ១៧៣៥ | ១៧៣ | 8.30 | ១៣៤ | 27 | ២.៣០ | 5 | |
| WH200X150 | ២០០ | ១៥០ | 4 | 6 | ២៥.៥២ | 20.03 | ១៩១៦ | ១៩២ | ៨.៦៦ | ៣៣៨ | 45 | ៣.៦៤ | 4 |
| ២០០ | ១៥០ | 5 | 8 | ៣៣.២០ | ២៦.០៦ | ២ ៤៧៣ | ២៤៧ | ៨.៦៣ | ៤៥០ | 60 | ៣.៦៨ | 5 | |
| WH200X200 | ២០០ | ២០០ | 5 | 8 | ៤១.២០ | ៣២.៣៤ | ៣ ២១០ | ៣២១ | ៨.៨៣ | ១០៦៧ | ១០៧ | ៥.០៩ | 5 |
| ២០០ | ២០០ | 6 | 10 | 50.80 | ៣៩.៨៨ | 3 905 | ៣៩០ | ៨.៧៧ | ១ ៣៣៤ | ១៣៣ | ៥,១២ | 5 | |
| WH250X125 | ២៥០ | ១២៥ | 4 | 6 | ២៤.៥២ | ១៩.២៥ | ២៦៨២ | ២១៥ | ១០.៤៦ | ១៩៥ | 31 | ២.៨២ | 4 |
| ២៥០ | ១២៥ | 5 | 8 | ៣១.៧០ | ២៤.៨៨ | ៣ ៤៦៣ | ២៧៧ | ១០.៤៥ | ២៦១ | 42 | ២.៨៧ | 5 | |
| ២៥០ | ១២៥ | 6 | 10 | ៣៨.៨០ | ៣០.៤៦ | ៤២១០ | ៣៣៧ | ១០.៤២ | ៣២៦ | 52 | ២.៩០ | 5 | |
អតិថិជនរបស់យើង។
មតិប្រតិកម្មពីអតិថិជនរបស់យើង។
ដែកអ៊ីណុក H Beams គឺជាធាតុផ្សំនៃរចនាសម្ព័ន្ធចម្រុះដែលផលិតពីដែកអ៊ីណុកដែលមានគុណភាពខ្ពស់។ឆានែលទាំងនេះមានរូបរាង "H" ប្លែកៗ ដែលផ្តល់នូវភាពរឹងមាំ និងស្ថេរភាពដល់ការសាងសង់ និងកម្មវិធីស្ថាបត្យកម្មផ្សេងៗ។ ដែកអ៊ីណុករលោង និងប៉ូលាបន្ថែមភាពស្មុគ្រស្មាញ ធ្វើឱ្យ H Beam ទាំងនេះសាកសមសម្រាប់ទាំងផ្នែករចនាមុខងារ និងរូបរាងទាក់ទាញ។ ការរចនារាងអក្សរ H បង្កើនសមត្ថភាពផ្ទុកបន្ទុកអតិបរមា ដែលធ្វើអោយបណ្តាញទាំងនេះល្អសម្រាប់ទ្រទ្រង់បន្ទុកធ្ងន់នៅក្នុងសំណង់ និងឧស្សាហកម្ម។ ដែកអ៊ីណុក H Beams ស្វែងរកកម្មវិធីនៅក្នុងឧស្សាហកម្មផ្សេងៗ រួមទាំងសំណង់ ស្ថាបត្យកម្ម និងការផលិត ដែលការគាំទ្ររចនាសម្ព័ន្ធរឹងមាំគឺចាំបាច់។

















